Strauß Immobilien erfüllt Ihre Miet- oder Kaufwünsche

Frisch modernisiert in Reichenbrand – ID 28625

Kaltmiete: 425 €

Schönes und ruhiges Wohngebiet in Reichenbrand. Gepflegte Wohnanlage!
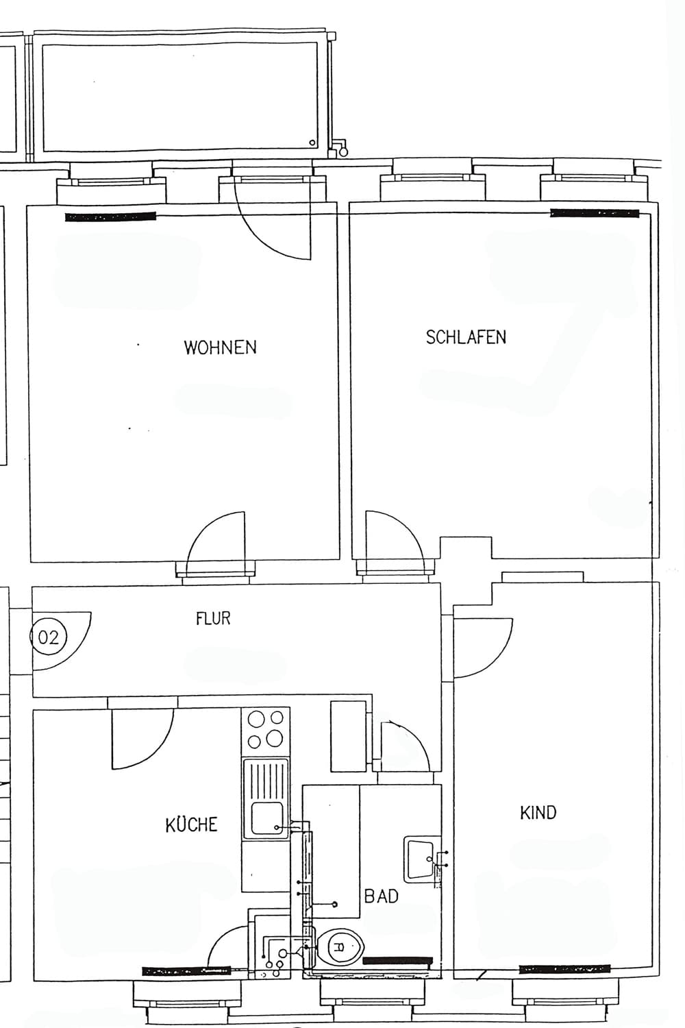
Die Wohnung wurde gerade umfangreich modernisiert. Folgende Wohnungseinrichtungen wurden erneuert: Tapeten, Fußböden, Zimmertüren, Dusche, WC. Die Wohnung verfügt über einen funktionellen Grundriss mit Tageslichtbad und großem Balkon. In der Küche findet auch ein Tisch bequem Platz. Wohnzimmer und Schlafzimmer sind gartenseitig gelegen.

Standort: Albrecht-Thaer-Straße 8, 09117 Chemnitz
Etage: Hochparterre
Zimmer: 3
Größe:  68,15 m²
Kaltmiete: 425,00 €
Nebenkosten: 200,00 €
Gesamtkosten: 625,00 €
Kaution: 2 Kaltmieten
Provision: keine
Verfügbarkeit: sofort
Stellplatz: öffentliche Stellplätze auf der Straße
Heizung: Gaszentralheizung
Baujahr: 1961
Energieausweis Energieverbrauchskennwert 91 kWh (m²*a)
Effiziensklasse: C
Sonstiges: Keller und Bodenkammer vorhanden

 

Objekt-Anfrageformular

    Ihr Name (erforderlich)

    Ihre Email (erforderlich)

    Ihre Telefonnummer (erforderlich)

    Objektname

    Ihre Nachricht