Exklusive Büroetage mit Klimaanlage - ID 153
Kaltmiete: 2.950,- €
Sie suchen das Besondere und erheben Anspruch auf Exklusivität und Präsentation, verbunden mit guter und schneller Erreichbarkeit, dann sollten Sie unbedingt einen Besichtigungstermin mit uns vereinbaren.
Das „BÜROHAUS GRÜNA“, mit seiner repräsentativen und stilvollen Architektur, zählt zu einem der exklusivsten Bürogebäude in Chemnitz. Beste Qualität und einladende Atmosphäre werden Ihre Geschäftspartner beeindrucken.
Das in den 1920-er Jahren errichtete ehemalige Fabrikationsgebäude wurde umfangreich und in hoher Qualität saniert. Der Standort liegt zwischen den Autobahnen A 4 und A 72, deren Anschlüsse Wüstenbrand und Chemnitz-Süd in jeweils 5 – 10 Minuten schnell erreichbar sind.
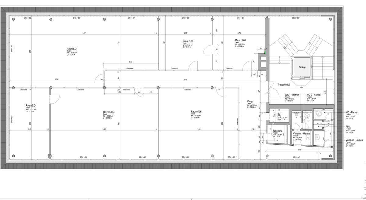
Ausstattung:
– Barrierefrei
– Rollstuhlgerecht
– hochwertiger Textilbelag
– funktioneller Grundriss
– separater Kundeneingang
– verglaster Innenaufzug
– EDV-Fensterbankkanäle
– Raumbeleuchtung
– getrennte Sanitäranlagen
– Klimaanlage
– sehr gute Objektbetreuung
– ausreichend Kfz-Stellplätze
– Gästeparkplatz
| Standort: | Mittelbacher Straße 3 in 09224 Chemnitz-Grüna |
| Etage: | Dachgeschoss |
| Räume: | 6 |
| Größe: | 350,00 m² |
| Kaltmiete: | 2.950,00 € |
| Nebenkosten: | 920,00 € |
| Gesamtkosten: | 3.870,00 zzgl. MwSt. |
| Kaution: | 2 Kaltmieten |
| Provision: | keine |
| Verfügbarkeit: | ab sofort |
| Heizung: | Gaszentralheizung |
| Baujahr: | 1920 |
| Energieausweis: | nicht erforderlich – Denkmalschutz |
| Stellplatz: | ja (je 20,00 € zzgl. MwSt.) |
| Sonstiges: |
