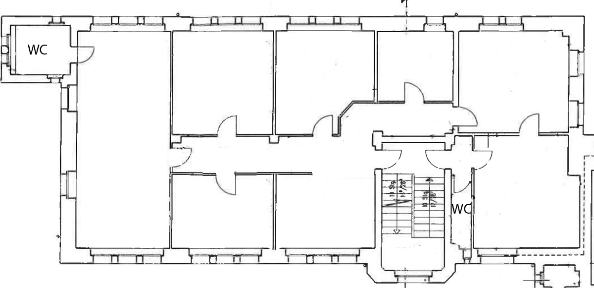
Top-Büroetage - ID 206
Kaltmiete: 1.075 €
Wohn- und Geschäftsanlage in gut frequentierter Lage. Nur 5 Minuten zur Autobahn A 72.
Die Büroetage befindet sich in bestem Zustand, mit hochwertigem Bodenbelag, Glasfaseranschluss, Kabelkanälen, elektrische Außenrollläden, Raumbeleuchtung und moderner Sanitäranlage.
Kfz-Stellplätze sind auf dem Hausgrundstück ausreichend vorhanden.
Weitere Gewerbemieter im Haus:
– Zahnarztpraxis
– Physiotherapie
– Kosmetik
– Friseursalon
| Standort: | Zwickauer Straße 296, 09116 Chemnitz |
| Etage: | 2. Obergeschoss |
| Räume: | 7 |
| Größe: | 179,34 m² |
| Kaltmiete: | 1.075,00 € |
| Nebenkosten: | 450,00 € |
| Gesamtkosten: | 1.525,00 € zzgl. MwSt. |
| Kaution: | 2 Kaltmieten |
| Provision: | keine |
| Verfügbarkeit: | n.V. |
| Stellplatz: | 20,00 € |
| Heizung: | Gaszentralheizung |
| Baujahr: | 1925 |
| Energieausweis: | Energiebedarf 271,8 kWh (m²*a) |
| Sonstiges: |
